|
用途及特點
TSX管道伸縮器(又名伸縮節),在一定范圍內可軸向伸縮,也能在一定的角度范圍內克服管道對接不同軸而產生的偏移,本產品用于管道不需要溫度補償,只作拆卸閥門用,配裝限位螺栓可以限位。
采用標準
法蘭連接尺寸:GB/T9113.1-2000; GB/T9115.1-2000; JB78 壓力試驗:GB/T13927-1992; JB/T9092-1999
主要技術參數
|
公稱通徑 |
0.6MPa |
1.0MPa |
1.6MPa |
2.5MPa |
|
公稱壓力 |
0.9MPa |
1.5MPa |
2.4MPa |
3.75MPa |
|
試驗壓力Ps(MPa) |
0.66MPa |
1.1MPa |
1.76MPa |
2.75MPa |
|
適用溫度 |
-29~125℃ 特殊 |
|
適用介質 |
淡水、海水、污水及輕質油品等 |
主要零件的材質
|
零件名稱 |
材料 |
|
器體 |
鑄鐵、鑄鋼、不銹鋼 |
|
器管 |
鑄鐵、鑄鋼、不銹鋼 |
|
密封 |
丁晴橡膠、氯丁橡膠、乙丙橡膠、硅橡膠、氟橡膠 |
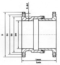
TSX-6/10 連接尺寸
|
公稱通徑 |
連接尺寸(標準值) |
結構長度 (標準值) |
|
0.6MPa |
1.0MPa |
最長 |
最短 |
|
毫米 |
英寸 |
D |
D1 |
D2 |
Z-Фd |
D |
D1 |
D2 |
Z-Фd |
|
80 |
3 |
190 |
150 |
124 |
4-18 |
200 |
160 |
132 |
8-18 |
252 |
202 |
|
100 |
4 |
210 |
170 |
144 |
4-18 |
220 |
180 |
156 |
8-18 |
252 |
202 |
|
125 |
5 |
240 |
200 |
174 |
8-18 |
250 |
210 |
184 |
8-18 |
269 |
202 |
|
150 |
6 |
265 |
225 |
199 |
8-18 |
285 |
240 |
211 |
8-22 |
261 |
202 |
|
200 |
8 |
320 |
280 |
254 |
8-18 |
340 |
295 |
266 |
8-22 |
306 |
246 |
|
250 |
10 |
375 |
335 |
309 |
12-18 |
395 |
350 |
319 |
12-22 |
311 |
251 |
|
300 |
12 |
440 |
395 |
363 |
12-22 |
445 |
400 |
370 |
12-22 |
313 |
253 |
|
350 |
14 |
490 |
445 |
413 |
12-22 |
505 |
460 |
429 |
16-22 |
327 |
267 |
|
400 |
16 |
540 |
495 |
463 |
16-22 |
565 |
515 |
480 |
16-26 |
341 |
271 |
|
450 |
18 |
595 |
550 |
518 |
16-22 |
615 |
565 |
530 |
20-26 |
341 |
271 |
|
500 |
20 |
645 |
600 |
568 |
20-22 |
670 |
620 |
582 |
20-26 |
351 |
281 |
|
600 |
24 |
755 |
705 |
667 |
20-26 |
780 |
725 |
682 |
20-30 |
380 |
310 |
|
700 |
28 |
860 |
810 |
772 |
24-26 |
895 |
840 |
794 |
24-30 |
420 |
350 |
|
800 |
32 |
975 |
920 |
878 |
24-30 |
1015 |
950 |
901 |
24-33 |
462 |
387 |
|
900 |
36 |
1075 |
1020 |
978 |
24-30 |
1115 |
1050 |
1001 |
28-33 |
478 |
403 |
|
1000 |
40 |
1175 |
1120 |
1078 |
28-30 |
1230 |
1160 |
1112 |
28-36 |
500 |
425 |
|
1200 |
48 |
1405 |
1340 |
1295 |
32-33 |
1455 |
1380 |
1328 |
32-39 |
464 |
374 |
|
1400 |
56 |
1630 |
1560 |
1510 |
36-36 |
1675 |
1590 |
1530 |
36-42 |
479 |
389 |
TSX-6/25 連接尺寸
|
公稱通徑 |
連接尺寸(標準值) |
結構長度 (標準值) |
|
0.6MPa |
1.0MPa |
最長 |
最短 |
|
毫米 |
英寸 |
D |
D1 |
D2 |
Z-Фd |
D |
D1 |
D2 |
Z-Фd |
|
80 |
3 |
200 |
160 |
132 |
8-18 |
200 |
160 |
132 |
8-18 |
252 |
202 |
|
100 |
4 |
220 |
180 |
156 |
8-18 |
235 |
190 |
156 |
8-22 |
252 |
202 |
|
125 |
5 |
250 |
210 |
184 |
8-18 |
270 |
220 |
184 |
8-26 |
259 |
202 |
|
150 |
6 |
285 |
240 |
211 |
8-22 |
300 |
250 |
211 |
8-26 |
261 |
202 |
|
200 |
8 |
340 |
295 |
266 |
12-22 |
360 |
310 |
274 |
12-26 |
306 |
246 |
|
250 |
10 |
405 |
355 |
319 |
12-26 |
425 |
370 |
330 |
12-30 |
311 |
251 |
|
300 |
12 |
460 |
410 |
370 |
12-26 |
485 |
430 |
387 |
16-30 |
313 |
253 |
|
350 |
14 |
520 |
470 |
429 |
16-26 |
555 |
490 |
448 |
16-33 |
327 |
267 |
|
400 |
16 |
580 |
525 |
480 |
16-30 |
620 |
550 |
503 |
16-36 |
341 |
271 |
|
450 |
18 |
640 |
585 |
548 |
20-30 |
670 |
600 |
548 |
20-36 |
341 |
271 |
|
500 |
20 |
715 |
650 |
609 |
20-33 |
730 |
660 |
609 |
20-36 |
351 |
281 |
|
600 |
24 |
840 |
770 |
720 |
20-36 |
845 |
770 |
720 |
30-39 |
380 |
310 |
|
700 |
28 |
910 |
840 |
794 |
24-36 |
960 |
875 |
820 |
24-42 |
420 |
350 |
|
800 |
32 |
1025 |
950 |
901 |
24-39 |
1085 |
990 |
928 |
24-48 |
462 |
387 |
|
900 |
36 |
1125 |
1050 |
1001 |
28-39 |
1185 |
1090 |
1028 |
28-48 |
478 |
403 |
|
1000 |
40 |
1255 |
1170 |
1112 |
28-42 |
1320 |
1210 |
1140 |
28-56 |
500 |
425 |
|
1200 |
48 |
1485 |
1390 |
1328 |
32-48 |
1530 |
1420 |
1350 |
32-56 |
464 |
374 |
|
1400 |
56 |
1685 |
1590 |
1530 |
36-48 |
1755 |
1640 |
1560 |
36-62 |
479 |
389 | |