產品展示
您現在的位置: 首頁--產品展示
產品描述
電動閘閥的主要用途
電動閘閥適用于公稱壓力PN1.6~16.0MPa,工作溫度≤-29℃~550℃的石油、化工、水力、火力電站各種系統的管路上,切斷或接通管路介質。電動閘閥適用介質為:水、油品、蒸氣、及酸、堿、氨、尿素、含硫天然氣等。操作方式有:手動、齒輪傳動、電動、氣動等。
電動不銹鋼閘閥-性能規范
|
型號 |
公稱壓力 (MPa) |
實驗壓力 |
工作溫度(℃) |
適用介質 | ||
|
強度(水)(Mpa) |
密封(水)空氣 |
低壓密封空氣(Mpa) | ||||
|
Z94IH-16C Z941W-16P(R) |
1.6 |
2.4 |
1.8 |
0.6 |
≤200 |
NITRICACID |
|
硝酸類 | ||||||
|
ACETICACID | ||||||
|
醋酸類 | ||||||
|
NITRICACID | ||||||
|
Z941W-25P(R) |
2.5 |
3.8 |
2.8 |
0.6 |
≤200 |
硝酸類 |
|
Z941W-40P(R) |
4.0 |
6.0 |
4.4 |
0.6 |
≤200 |
ACETICACID |
|
Z941W-64P(R) |
6.4 |
9.6 |
7.0 |
0.6 |
≤200 |
醋酸類 |
電動不銹鋼閘閥-主要零件材質
|
閥體/閥蓋 |
ZG1Cr18Ni9Ti |
ZG00Cr18Ni10 |
ZG1Cr18Ni12Mo2Ti |
ZG00Cr17Ni14Mo2 |
WCB |
|
零件名稱 |
ZG1Cr18Ni9Ti系列 |
ZG00Cr18Ni10系列 |
ZG1Cr18Ni12Mo2Ti系列 |
ZG00Cr17Ni14Mo2系列 |
WCB系列 |
|
閘板 |
ZG1Cr18NI9Ti |
ZG00Cr18Ni10 |
ZG1Cr18Ni12Mo2Ti |
ZG00Cr17Ni14Mo2 |
1Cr13 |
|
閥桿 |
1Cr18Ni9Ti |
ooCr18Ni10 |
1Cr18Ni12Mo2Ti |
ooCr17Ni14Mo2 |
1Cr13 |
|
填料 |
PTFE編織 |
PTFE編織 |
PTFE編織 |
PTFE編織 |
石墨Graphite |
|
墊片 |
304L+PTFE |
304L+PTFE |
316L+PTFE |
316L+PTFE |
石墨+304 Graphite+304 |
|
壓蓋 |
ZG1Cr181Ni10 |
ZG00Cr18Ni10 |
ZG1Cr18Ni12Mo2Ti |
ZG00Cr17Ni14Mo2 |
WCB |
|
填料壓環 |
1Cr18Ni9Ti |
00Cr18Ni10 |
1Cr18Mi12Mo2Ti |
00Cr17Ni14Mo2 |
1Cr13 |
|
螺栓 |
1Cr171Ni2 |
1Cr171Ni2 |
1Cr171Ni2 |
1Cr171Ni2 |
35CrMoA |
|
螺母 |
1Cr18Ni9Ti |
1Cr18Ni9Ti |
1Cr18Ni9Ti |
1Cr18Ni9Ti |
45 |

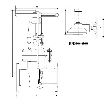
電動不銹鋼閘閥-1.6MPa主要連接尺寸
|
尺寸 |
DN |
15 |
20 |
25 |
32 |
40 |
50 |
65 |
80 |
100 |
125 |
150 |
200 |
250 |
300 |
350 |
400 |
450 |
500 |
600 |
|
L |
mm |
130 |
150 |
160 |
180 |
200 |
250 |
265 |
280 |
300 |
325 |
350 |
400 |
450 |
500 |
550 |
600 |
650 |
700 |
800 |
|
H |
mm |
175 |
180 |
210 |
210 |
350 |
358 |
373 |
435 |
500 |
614 |
674 |
818 |
1225 |
1415 |
1630 |
1780 |
2050 |
2181 |
2599 |
|
W |
mm |
180 |
180 |
200 |
200 |
200 |
240 |
240 |
280 |
320 |
360 |
360 |
400 |
450 |
500 |
500 |
600 |
720 |
720 |
720 |
電動不銹鋼閘閥-2.5MPa主要連接尺寸
|
尺寸 |
DN |
15 |
20 |
25 |
32 |
40 |
50 |
65 |
80 |
100 |
125 |
150 |
200 |
250 |
300 |
350 |
400 |
450 |
500 |
600 |
|
L |
mm |
130 |
150 |
160 |
180 |
200 |
250 |
265 |
280 |
300 |
325 |
350 |
400 |
450 |
500 |
550 |
600 |
650 |
700 |
800 |
|
H |
mm |
175 |
180 |
210 |
210 |
350 |
358 |
373 |
435 |
500 |
614 |
674 |
818 |
1225 |
1415 |
1630 |
1780 |
2050 |
2181 |
2599 |
|
W |
mm |
180 |
180 |
200 |
200 |
200 |
240 |
240 |
280 |
320 |
360 |
360 |
400 |
450 |
500 |
500 |
600 |
720 |
720 |
720 |
電動不銹鋼閘閥-4.0MPa主要連接尺寸
|
尺寸 |
DN |
15 |
20 |
25 |
32 |
40 |
50 |
65 |
80 |
100 |
125 |
150 |
200 |
250 |
300 |
350 |
400 |
|
L |
mm |
130 |
150 |
160 |
180 |
200 |
250 |
280 |
310 |
350 |
400 |
450 |
550 |
650 |
750 |
850 |
950 |
|
H |
mm |
175 |
180 |
210 |
210 |
350 |
358 |
373 |
435 |
500 |
614 |
674 |
818 |
1225 |
1415 |
1630 |
1780 |
|
W |
mm |
180 |
180 |
200 |
200 |
200 |
240 |
240 |
280 |
320 |
360 |
360 |
400 |
450 |
500 |
500 |
600 |
電動不銹鋼閘閥-6.4MPa主要連接尺寸
|
尺寸 |
DN |
15 |
20 |
25 |
32 |
40 |
50 |
65 |
80 |
100 |
125 |
150 |
200 |
250 |
300 |
350 |
400 |
|
L |
mm |
170 |
190 |
210 |
230 |
240 |
250 |
280 |
320 |
350 |
400 |
450 |
550 |
650 |
750 |
850 |
950 |
|
H |
mm |
175 |
180 |
210 |
230 |
350 |
359 |
373 |
435 |
500 |
614 |
674 |
818 |
970 |
1145 |
1280 |
1450 |
|
W |
mm |
120 |
120 |
140 |
160 |
200 |
240 |
280 |
320 |
360 |
400 |
400 |
450 |
560 |
640 |
800 |
800 |
電動不銹鋼閘閥-10.0MPa主要連接尺寸
|
尺寸 |
DN |
15 |
20 |
25 |
32 |
40 |
50 |
65 |
80 |
100 |
125 |
150 |
200 |
250 |
|
L |
mm |
170 |
190 |
210 |
230 |
240 |
250 |
280 |
310 |
350 |
400 |
450 |
550 |
650 |
|
H |
mm |
175 |
180 |
210 |
230 |
350 |
359 |
373 |
435 |
500 |
614 |
674 |
818 |
970 |
|
W |
mm |
120 |
120 |
160 |
180 |
240 |
280 |
320 |
360 |
400 |
450 |
560 |
640 |
720 |
電動不銹鋼閘閥-16.0MPa主要連接尺寸
|
尺寸 |
DN |
15 |
20 |
25 |
32 |
40 |
50 |
65 |
80 |
100 |
125 |
150 |
200 |
|
L |
mm |
170 |
190 |
210 |
230 |
240 |
300 |
340 |
390 |
450 |
525 |
600 |
750 |
|
H |
mm |
175 |
180 |
210 |
230 |
350 |
359 |
373 |
435 |
500 |
614 |
674 |
818 |
|
W |
mm |
120 |
120 |
140 |
160 |
200 |
240 |
280 |
320 |
360 |
400 |
400 |
450 |
其他相關產品
|
|
|
| ||||||||







